Better Supporting Our Community; Securing a Sustainable Future for St Andrew's
You can read about the ideas for our future here, and submit feedback via a survey link at the bottom of the page.

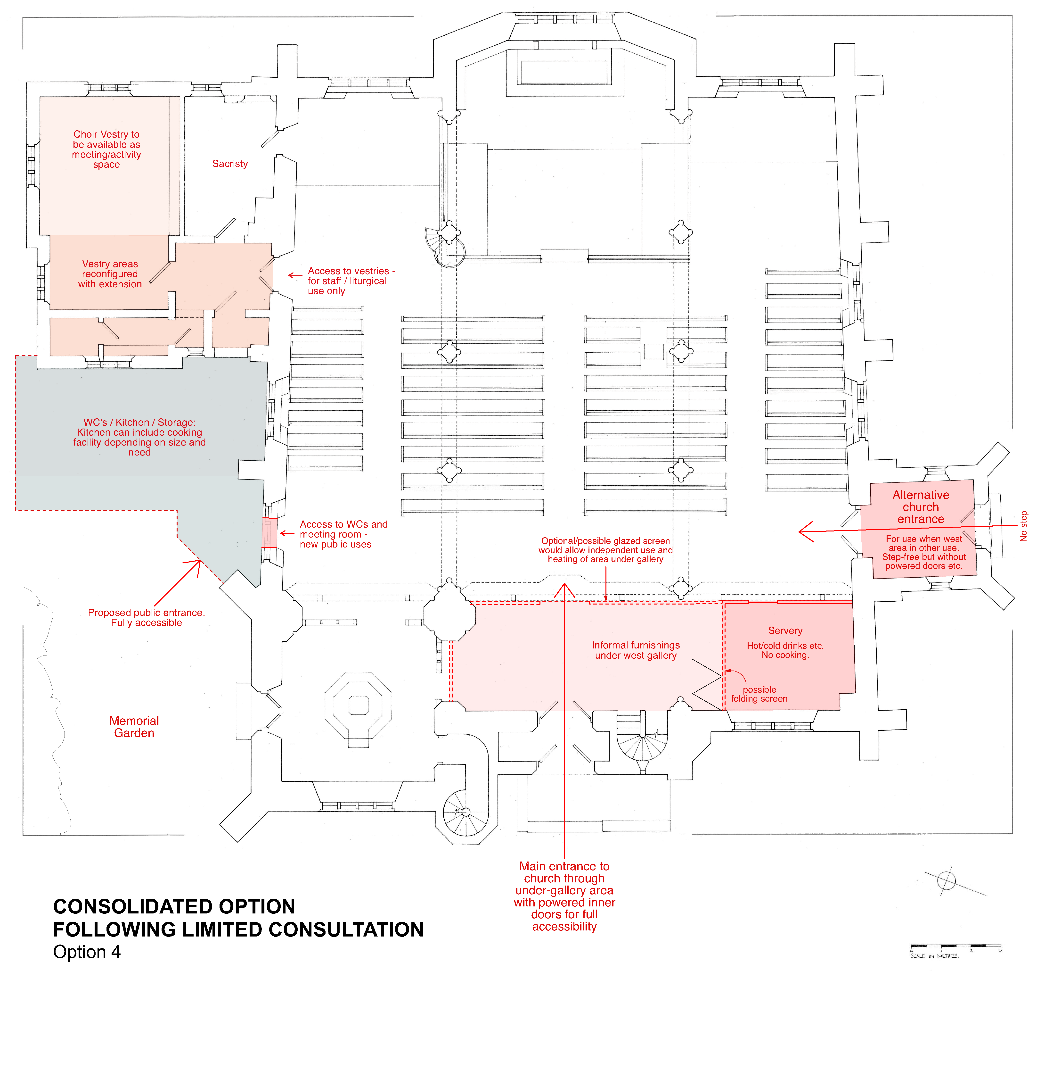
Internal Reordering Plan
Below is our initial idea for accommating modern facilities within the building, and adapting the spaces to deliver new activities and better serve our local community.
Download a PDF of the Internal Reordering Plan here.

Wider Site Plan
Here you can see how we think the wider site could be improved.
Download a PDF of the Wider Site Plan here.

Community Outreach

Share your thoughts
If you're local to St Andrew's Kingsbury, or from Brent more widely, we want to hear from you. We're keen to understand whether our ideas will support local needs and demand and if there is anything we are missing from our plans, or that could be done differently, and why.
Please follow this link to answer some simple questions about the above plans and ideas: https://forms.gle/kmcNWnh9z1DMhovz6.